Dom mieszkalny – STODOŁA 70m² (500×700)
298 689,00 zł
Domy drewniane pod klucz to kompleksowe rozwiązanie dla osób poszukujących komfortowego i ekologicznego miejsca do życia. Nasza oferta obejmuje pełny zakres usług, włączając w to:
-> płytę fundamentową na terenie Polski,
-> instalacje hydrauliczną i elektryczną,
-> konstrukcję z balika 70 mm,
-> ocieplenie ścian, podłogi, dachu wełną 15 cm,
-> impregnację zewnętrzną i wewnętrzną,
-> blachodachówkę,
-> okna trzyszybowe PVC,
-> montaż i transport na terenie Polski.
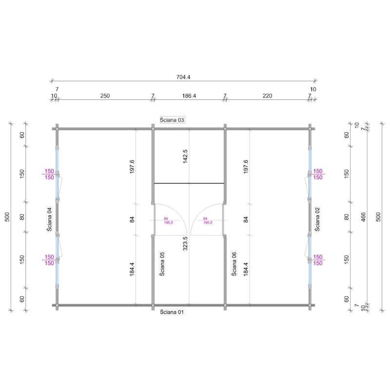
Dane techniczne:
- Wymiary Domku: 500×700 cm
- Powierzchnia Podłogi: 65 m2
- Powierzchnia Dachu: 41,96 m2
- Grubość Balika: 70 mm
- Wymiary Ściany: 361,8 cm
- Wysokość Szczytu: 498,4 cm
- Nachylenie Dachu: 30 °
- Długość Wypustu Dachu: 10 cm
- Wymiary Drzwi: 3x84x195,5/ drzwi frontowe 380×196 cm
- Wymiary Okien: 4x150x150/ 100×80/ 80×40 cm
















