Bunkie – 14,4m² (domek z antresolą)
18,200 zł
DANE TECHNICZNE:
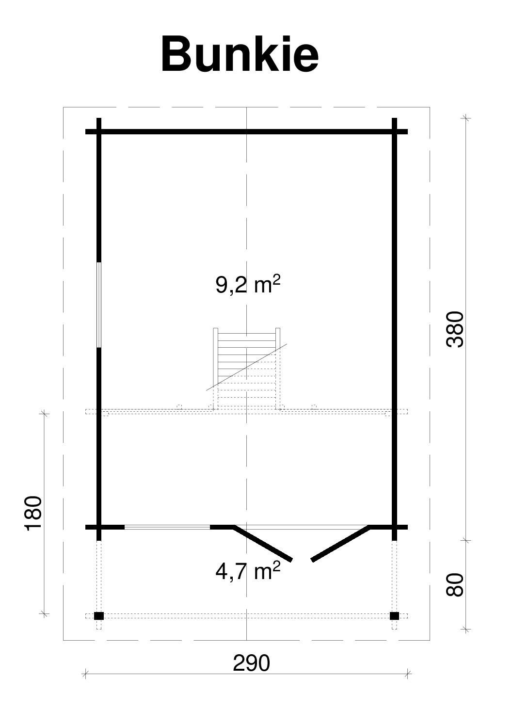
| Wymiar z el. wystającymi: | 290×380 cm |
|---|---|
| Wymiar bez el. wystających: | 270×360 cm |
| Grubość ściany: | 40 mm |
| Wysokość ściany: | 228 cm |
| Wysokość w szczycie: | 337 cm |
| Powierzchnia zabudowy: | 14,4 m2 |
| Powierzchnia dachu: | ~20,6 m2 |
| Kubatura konstrukcji: | 27,3 m3 |
| Kąt nachylenia dachu: | 38o |
| Wypust dachu: | 100 cm |
| Grubość deski dachowej: | 18 mm |
| Grubosć deski podłogowej: | 18 mm |
| Wymiar belki podwalinowej: | 45×70 mm |
| Ilość drzwi: | 1x 1200×1955 mm |
| Ilość okien nieotwieralnych: | – |
| Ilość okien uchylnych: | – |
| Ilość okien rozwieranych: | – |
| Ilość okien uch. rozw.: | 2x 765×990 mm |
| Ilość podw. okien uch. rozw.: | – |








