Gustav A z antresolą 6x6m, 44mm

46,900 

Domek Gustav A z antresolą 6x6m, 44mm

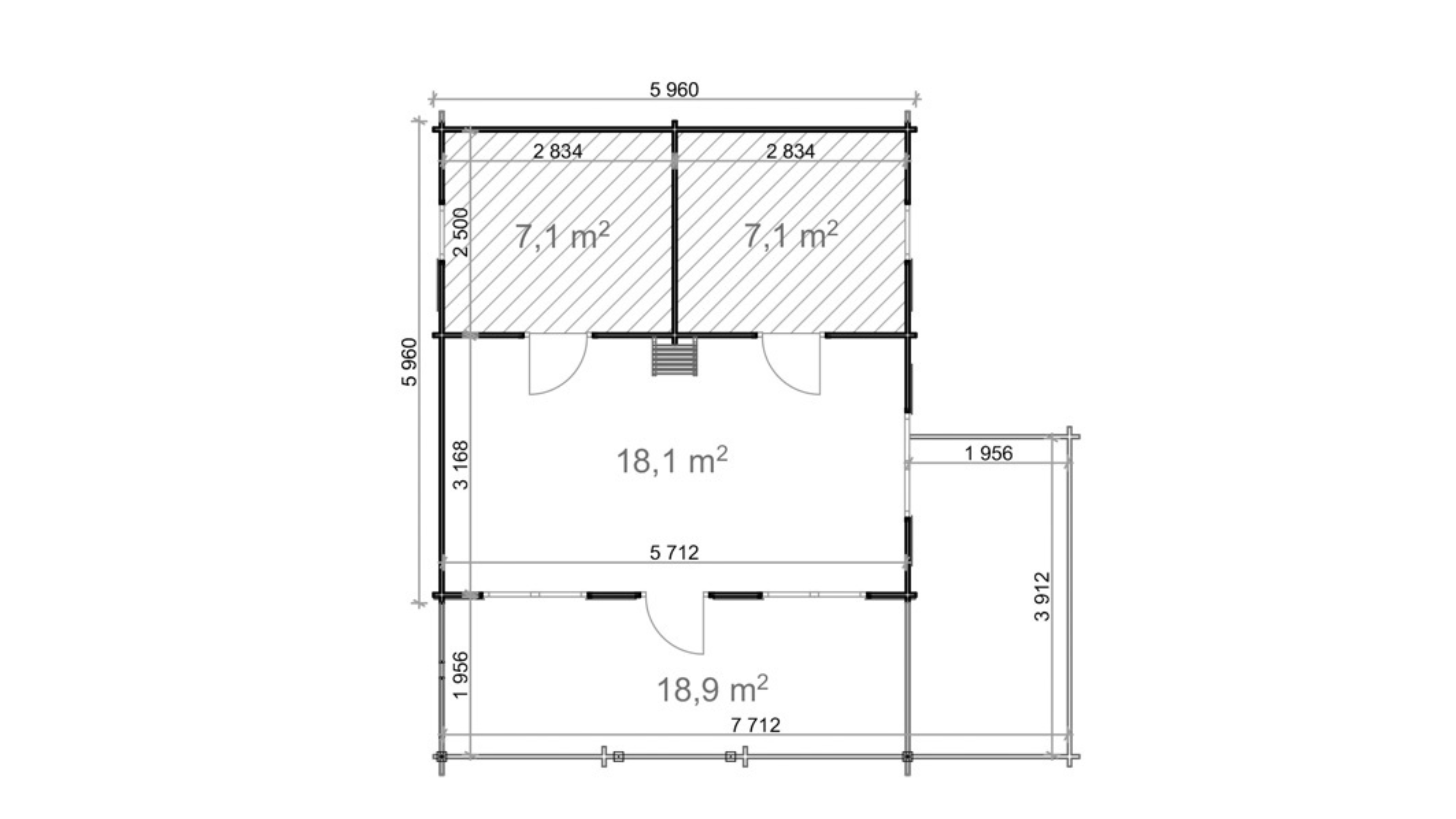
Ten klasyczny bungalow o powierzchni 32 m2 z dodatkową antresolą o powierzchni 14 m2 jest idealny dla całej rodziny, a ekskluzywny taras o powierzchni 19 m2 zapewnia mnóstwo miejsca do rekreacji i rozrywki na świeżym powietrzu.

Wymiar z el. wystającymi:   6×6 m
Wymiar bez el. wystających: 5,8×5,8 m
Grubość ściany: 44 mm
Wysokość ściany: 2,43 m
Wysokość w szczycie: 4,12 m
Powierzchnia wewnątrz: 32 m2 + 14 m2 antresola
Powierzchnia dachu: 60 m2

Taras: 19 m2

Kąt nachylenia dachu:  31o
Grubość deski dachowej: 19 mm
Grubość deski podłogowej: 19 mm
Ilość drzwi: 1 – 1,98 x 0,85 m (pojedyncze połowa szklana, drewniane), 2 – 1,98 x 0,85 m (pojedyncze drewniane)
Ilość okien: 1 – 0,52 x 0,5 m (pojedyncze), 2 – 0,92 x 0,7 m (pojedyncze), 3 – 0,92 x 1,3 m (podwójne)