Suzy 3,2x6m, 44mm
31,000 zł
Domek Suzy 3,2x6m, 44mm
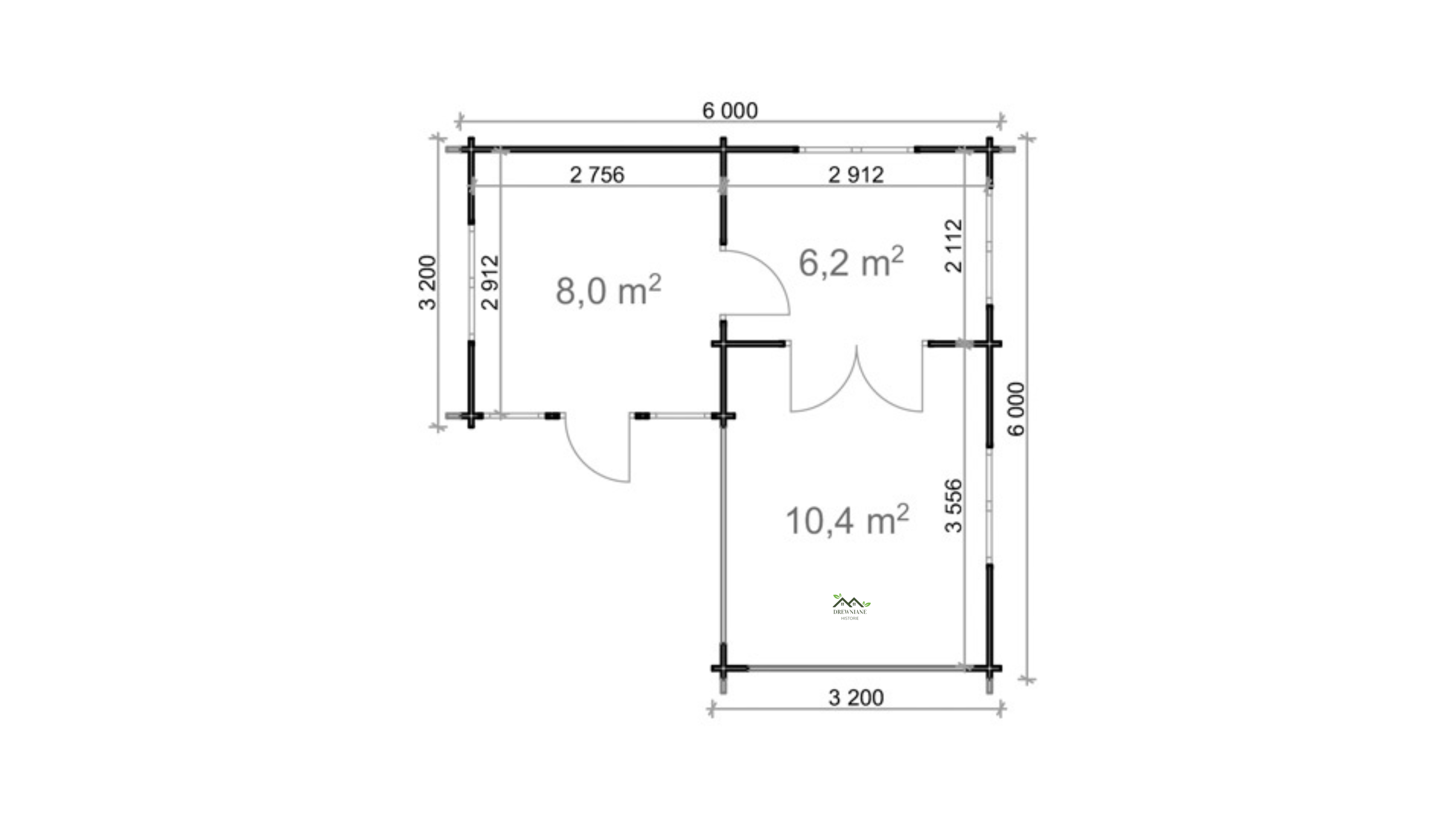
Ten wyjątkowy dom wakacyjny w kształcie litery L oferuje dwie oddzielne przestrzenie mogące służyć jako miejsce relaksu, spożywania posiłków na świeżym powietrzu lub pokoju gier.
Duży zadaszony taras z oknem oraz otwartą przestrzenią o powierzchni 10,4 m2, nadaje się idealnie na miejsce dla wanny z hydromasażem. To wymarzone miejsce na relaks i zabawę na świeżym powietrzu.
| Wymiar z el. wystającymi: 3,2 x 6 m |
| Wymiar bez el. wystających: 3,0 x 5,8 m |
| Grubość ściany: 44 mm |
| Wysokość ściany: 2,16 m |
| Wysokość w szczycie: 2,49 m |
| Powierzchnia wewnątrz: 14,2 m2 |
| Powierzchnia dachu: 34,5 m2 |
| Kąt nachylenia dachu: 23o |
| Grubość deski dachowej: 19 mm |
| Grubość deski podłogowej: 19 mm |
| Ilość drzwi: 1 – 1,85 x 0,85 m (drewniane), 1 – 1,85 x 0,85 m (pojedyncze szklane), 1 – 1,85×1,6m (podwójne szklane) |
| Ilość okien: 2 – 1,43 x 0,7 m (pojedyncze), 4 – 1,43×1,3 m (podwójne) |










